

地址:北京市密云区高岭镇政府办公楼
王经理 13393261468
Q Q:514468705/1049705527
邮箱:jhcxkj@163.com
项目简介
南宁东站,是一座在建的高度古代化的铁路客运特等站,属南宁铁路局统辖。本站爲南广高铁、广西滨海城际高铁与柳南城际高铁的交汇点,是广西地域最重要的铁路客运枢纽与规划最大铁路客运站,建成后将成爲中国东北方最大的火车站之一。
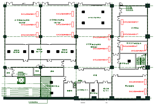
本工程机房丝瓜视频污染APP次要使用于出站夹层E区的3间信号电源及继电室(南钦场、南广场和柳南场),1间信息机房,1间防灾安全监控机房和1间通讯机器室。
3间信号电源及继电室均爲180㎡,信息机房72㎡,防灾安全监控机房42㎡,通讯机器室98㎡。
立体安置如图所示:

铁路站房设备丝瓜视频色版本琐细特色
铁路站房里有少数设备房间,其特色是一般设在建筑内区,围护结构的保温功用很棒,电子设备发热量大( 散热方针400~2000 W/㎡ ),其间95% 以上爲显热,即使在夏日也需供冷。爲确保电子设备动摇的使命环境,要求爲机房效劳的空调机必需全年8760h连续工作。因此机房规划不只要重视丝瓜视频色版本设备的节能, 更要确保丝瓜视频色版本及琐细的可靠性。
工艺专业提出的机房环境条件如下:
1) 主机房( 开机时) 温度( 23±1)℃,肯定湿度爲40%~55%,不能结露。温度改变率( 开、停机时)< 5 ℃/h。
2) 应确保房间的正压,主机房与其他房间、走廊的压差不小于5 Pa,与室外压差不小于10 Pa。
3) 空调琐细的新风量应按下列两项中的较大值中止选取:1、按使命人员核算, 每人40 m³/h;2、维持室内正压所需风量。
4) 主机房内的空气含尘浓度, 在静态条件下测验, 空气中粒径大于或等于0.5μm 的尘粒数应少于18000粒/L。
气流组织规划
电子设备用房应尽可以与一般建筑及内部环境阻隔。一旦室内封闭, 必需确保高效的空气活动, 完结以最少的能量打扫最多的设备热量。
本项目均选用上送风风管方法送风,这种送风方法的好处在于:
1、通讯设备是上走线方法,机房内无活动地板,空调机组所需加湿给水管、冷凝水排水管均爲明安置,一旦有漏水景象,能快速发现,及时打扫,消弭惹起机房不安全的要素。
2、机房内没有活动地板,不易积灰,即使房间有尘埃,清算打扫很便利,从而使空调机组的过滤网运用工夫长,添加保护办理的使命量。
项目设备设置
该项目选用风冷型机房丝瓜视频污染APP,此种机型设备及保护肯定杂乱,具有较高能效比。

项目总结
跟着铁路信息化树立的不时展开,铁路通讯网络成爲确保行车安全、进步运送效率的重要工具。爲此就要求站房信号电源及继电室、信息机房、防灾安全监控机房等相关设备机房必需暂时处于连续动摇的工作形状中。作爲机房设备动摇工作环境的确保,空调琐细工作的连续动摇和可靠性就显得至关重要。
EK空调爲此项目供给的全部机组均选用美国谷轮的全封闭高效涡旋式紧缩机,内置于室内机组,能365天×24小时动摇无缺点工作。高效大面积平板式换热器,无效提高显热比,下降工作费用。室外冷凝器选用高强度耐腐蚀喷涂钢板,适用于各种恶劣环境和气候。机组选用工业级机房共用操控器,可对室内环境温湿度完结精准操控,同时操控器装备RS485通讯接口,用于近程会集监控,便利机组操控与监管。全部机组均具有掉电回忆功用,来电自启功用,双机切换轮值和备份使命等特色。
EK机房丝瓜视频污染APP爲您的高速游览供给动摇确保。
文章来源:机房丝瓜视频污染APP http://www.yongchun0769.com/